Коммерция с арендатором
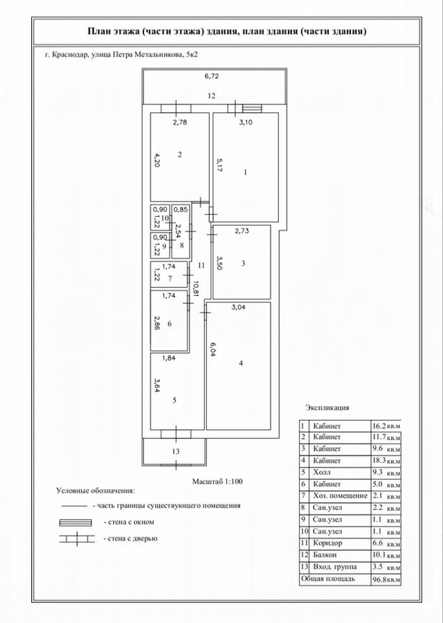
| Населенный пункт | Краснодар |
|---|---|
| Улица | улица Петра Метальникова |
| Номер дома | 5к2 |
Описание
Собственник продаст коммерческое помещение,площадь 96 кв м,расположенное по адресу: г.Краснодар,ул.Петра Метальникова,5 корпус.2.Помещение на 1м этаже многоэтажного дома,два отдельных входа.Все коммуникации центральные.Помещение сдано в долгосрочную аренду федеральному арендатору - сеть клиник под производственно- офисный центр.Договор аренды с автоиндексацией.Окупаемость 10 лет. Арендная плата на 2026 год 85тр, индексаци +5% каждый последующий год
| Сведения о недвижимости | |
|---|---|
| ID | 47 |
| Право собственности | Собственник |
| Тип парковки | На улице |
| Вход cian (avito) | Отдельный с улицы |
| Тип сделки авито коммерческая | Продажа |
| Планировка cian | Кабинетная |
| Планировка avito | Кабинетная |
| Отделка помещения коммерческая | Офисная |
| Состояние cian | Офисная отделка |
| Тип коммерческой | Готовый бизнес |
| Площадь, кв.м. | 96.8 |
| Этаж | 1 |
| Стоимость | 12 700 000 руб. |

Ганжа Максим
Стоимость - 12 700 000 руб.
Цена кв.м. - 131 198 руб.
Сумма переплаты: 0
Сумма общая: 0
Ежемесячный платеж: 0














